‹ › ×
    • facebook
    • pinterest
    • linkedin
    • instagram
    brand-logo PROJETS
    • AGENCE & CONTACT
    • TARIFS & MISSIONS

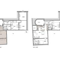
    Réunion de deux appartements de 100 m² / Paris 10ème

    PROGRAMME : réunion & rénovation de 2 appartements

    LOCALISATION : Paris [75010]

    SURFACE : 100 m² habitables

    BUDGET : 70 000 € HT  

    MAITRE D'OUVRAGE : Privé 

    MAITRE D'OEUVRE : Matesco Architecture 

    DATE : 2017 - 2018

    STATUT : chantier livré en avril 2018

    MISSION : MOE complète

    Rénovation complète d'un appartement de 100 m², issu de la réunion de deux appartements indépendants situés sur le même palier.

    Ouverture de la cuisine sur le séjour, déplacement d'une salle de bain, transformation d'une salle de bain en dressing, aménagements sur mesure, rangements.

    # rénovation, aménagements sur mesure, parquet chêne massif,  carreaux de ciment, cuisine ouverte.  

    © 2019 - Matesco Architecture - EURL d'Architecture - 26 rue de Terre Neuve 75020 Paris - 09 72 62 24 72 - bonjour@matesco.archi