‹ › ×
    • facebook
    • pinterest
    • linkedin
    • instagram
    brand-logo PROJETS
    • AGENCE & CONTACT
    • TARIFS & MISSIONS

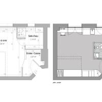
    Rénovation d'un studio de 18m² / Paris 18ème

    PROGRAMME : rénovation totale d'un studio

    LOCALISATION : Paris [75018]

    SURFACE : 18 m² habitables

    BUDGET : 30 000 € HT  travaux

    MAITRE D'OUVRAGE : Privé 

    MAITRE D'OEUVRE : LM2 

    DATE : 2014

    STATUT : projet livré octobre 2014

    MISSION : MOE complète

    Le projet concerne la rénovation totale d’un appartement destiné à la location, dans un état initial d’insalubrité. Il fallait optimiser l’espace au maximum afin qu’il soit confortable à vivre malgré le peu de surface disponible.

    Aucun recoin n’a été laissé de coté, tant dans l’aménagement de la micro salle d’eau éclairée en second jour, que dans la cuisine assez spacieuse pour cuisiner au quotidien. Nous avons profité de la hauteur sous plafond généreuse pour placer le lit en mezzanine, libérant ainsi l’espace de vie.

    # rénovation, lit mezzanine sur mesure, béton ciré, aménagement sur mesure, petite surface, douche à l'italienne

    © 2019 - Matesco Architecture - EURL d'Architecture - 26 rue de Terre Neuve 75020 Paris - 09 72 62 24 72 - bonjour@matesco.archi